
產品類別:三次元振動篩
產品簡介:600mm碳鋼振動篩該設備為直徑600mm的單層二個出料口全碳鋼材質振動篩,對衛生級別要求不高的客戶使用,價格便宜,換網容易、操作簡單、清洗方便。振動篩廠家大漢機械可以根據客戶的需求特殊定做。
全國統一銷售熱線
免費獲取報價
600mm碳鋼振動篩該設備為直徑600mm的單層二個出料口全碳鋼材質振動篩,對衛生級別要求不高的客戶使用,價格便宜,換網容易、操作簡單、清洗方便。振動篩廠家大漢機械可以根據客戶的需求特殊定做。
60mm單層碳鋼振動篩細節展示:
不同型號的碳鋼振動篩:
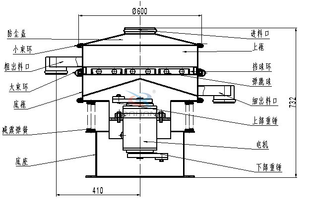
600單層振動篩結構圖與參數表:
600mm振動篩的工作原理:
直徑600振動篩是由直立式振動電機作為激振源,電機上、下兩端安裝有偏心重錘,將電機的旋轉運動轉變為水平、垂直、傾斜的三次元運動,再把這個運動傳遞給篩面進行篩分。調節上、下兩端的相位角,可以改變物料在篩面上的運動軌跡。
600振動篩換網圖示:
新鄉大漢振動篩廠家可根據客戶需求設計特殊型號,無論物料是干是濕,是精細是粗糙,是比重大是比重輕,0-400目都可以篩選,不管是液態的,還是漿狀的0-600目都可以過濾。大漢振動篩系列產品同時配備專門的篩網清理裝置,把堵網率降到低,過網率和處理精度得以有效提高。

